로고

다온테마
로그인 회원가입
  • 철강,C형강,각파이프
  • H빔시공
  • 철강,C형강,각파이프

    H빔시공 게시판입니다.

    H빔시공

    H빔시공 게시판입니다.

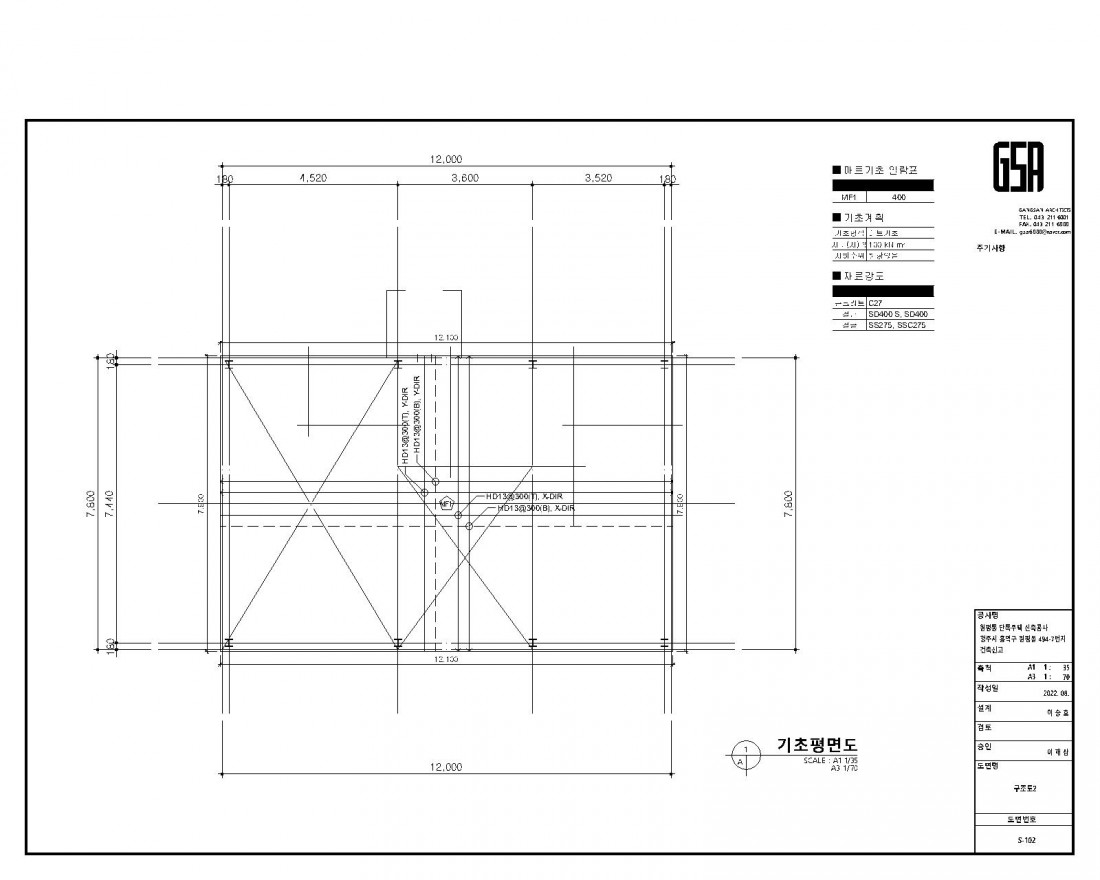
    원평동 2-기초평면도.jpg

    29평 철골 도면과 견적서 2

    간략설명 200*200H빔 기둥

    목록으로

    본문

    상세설명

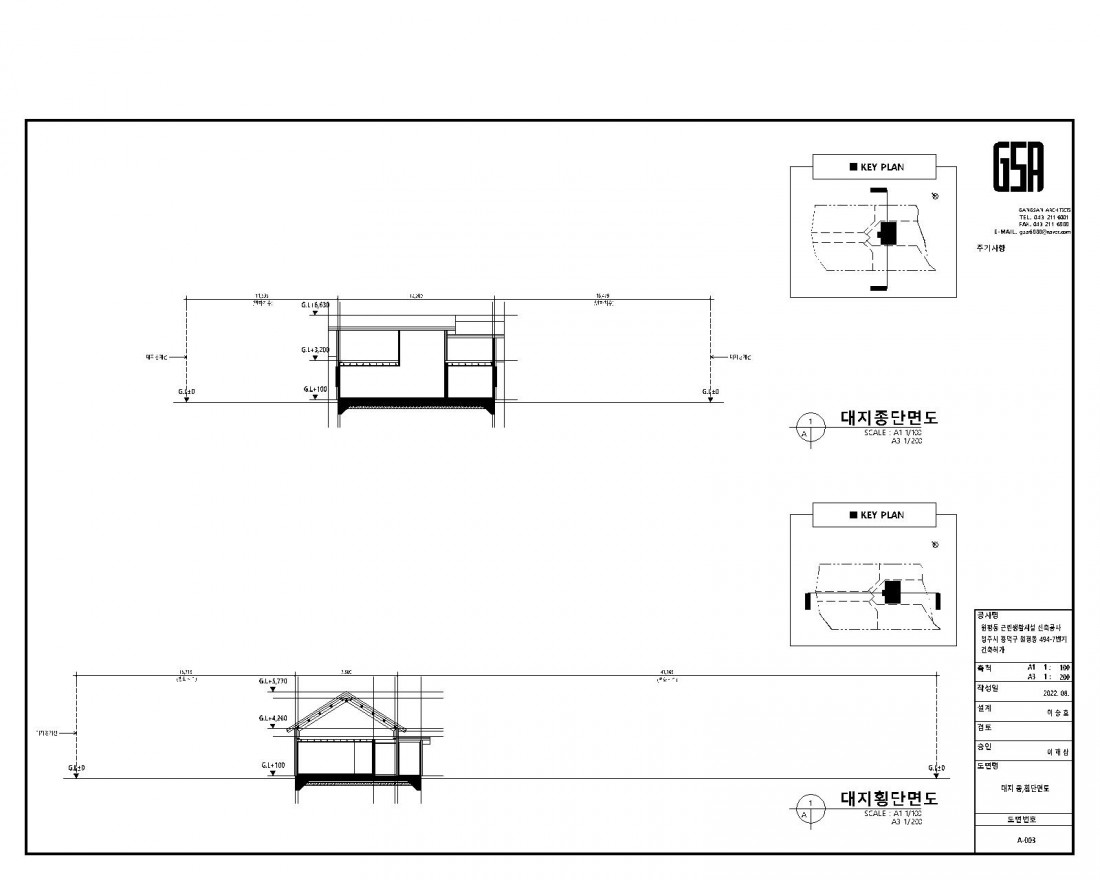
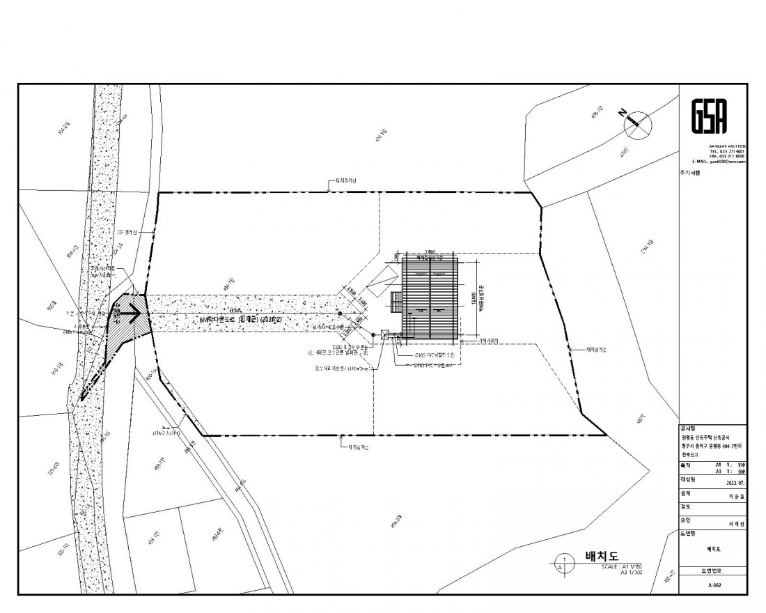
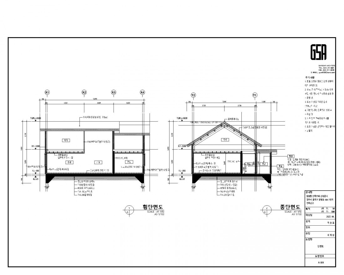
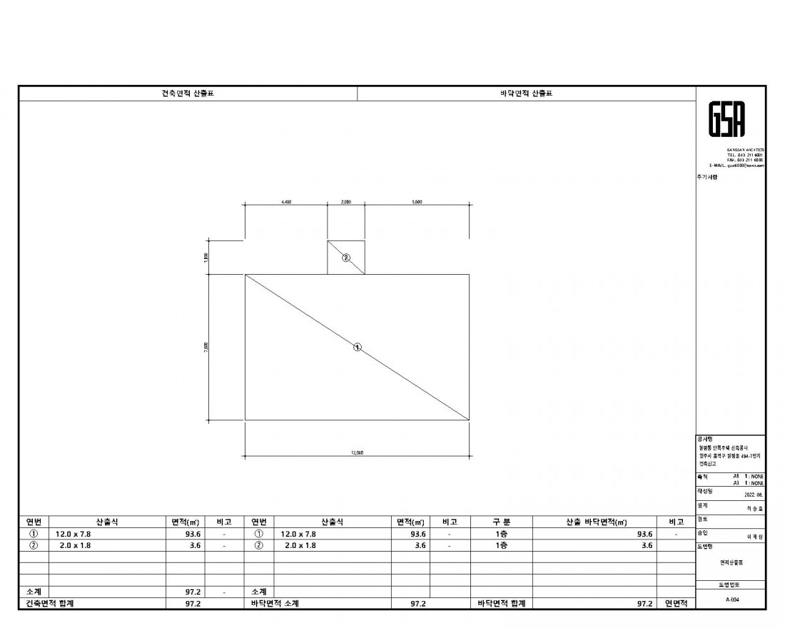
    7.8*12.100총 평수  28.6평 샘플H빔철골 도면 견적상담은 전화로 주세요.,010-9468-2217원평동 2-기초평면도.jpg

     

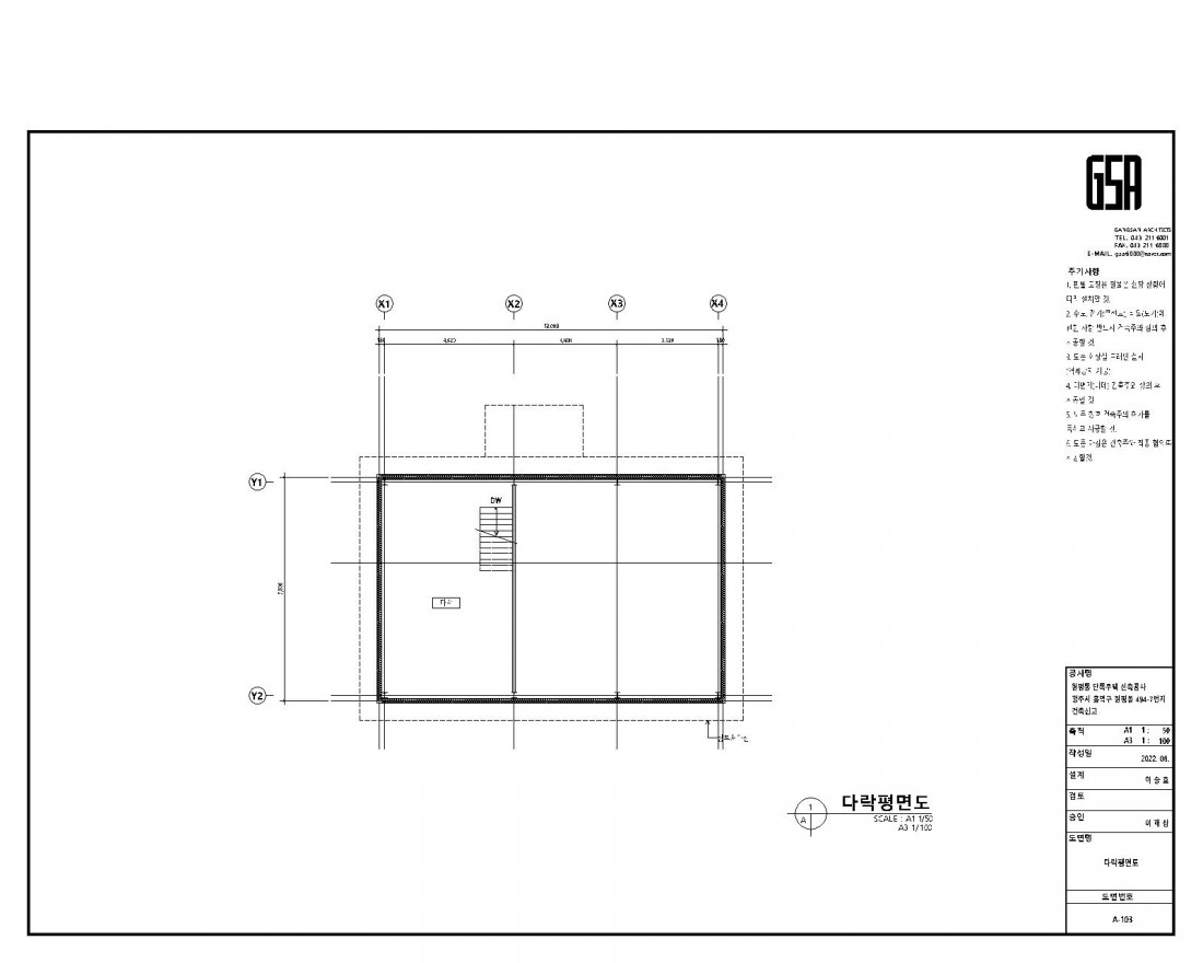
    원평동 2-다락평면도.jpg

     

    원평동 2-단면도.jpg

     

    원평동 2-대지횡종단면도.jpg

     

    원평동 2-면적산출표.jpg

     

    원평동 2-면적산출표2.jpg

     

    원평동 2-배치도.jpg

     

    원평동 2-실내재료 마감표.jpg

     

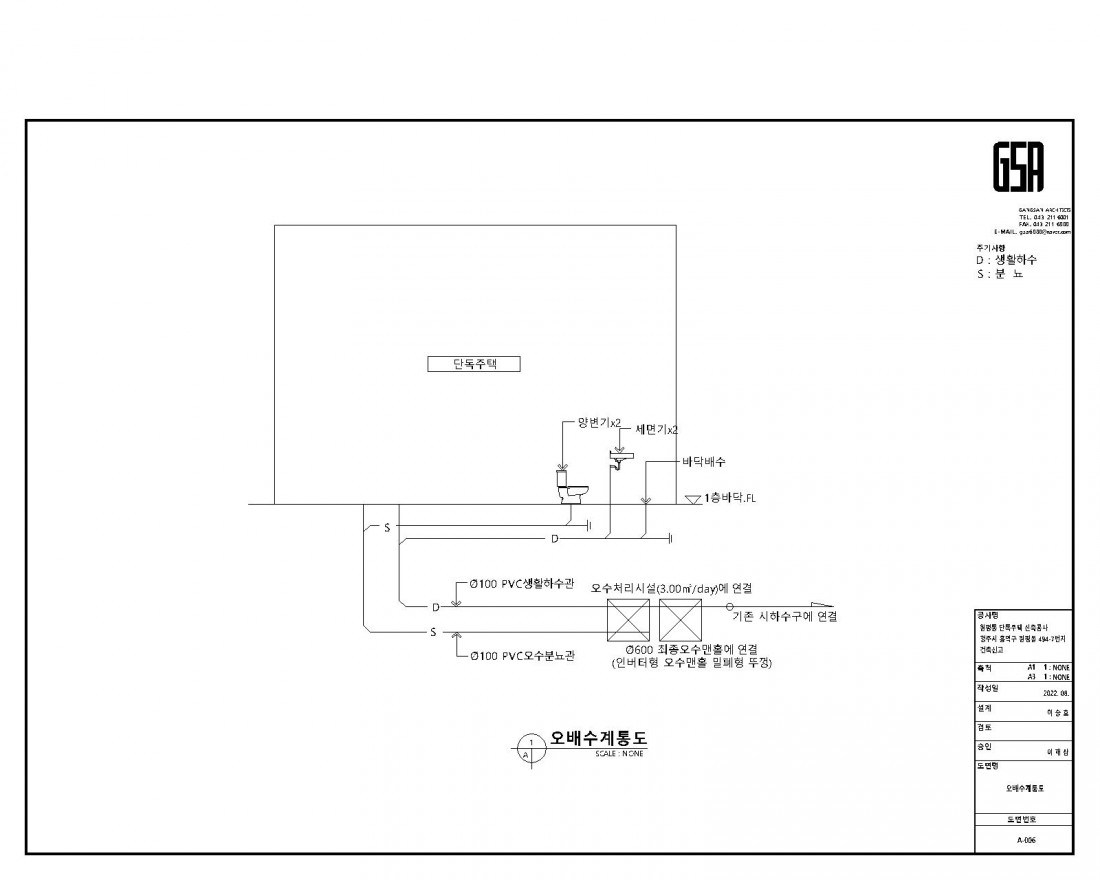
    원평동 2-오배수계통도.jpg

     

    원평동 2-정면,우측면도.jpg

     




    댓글목록

    등록된 댓글이 없습니다.